Будівництво
Проектування
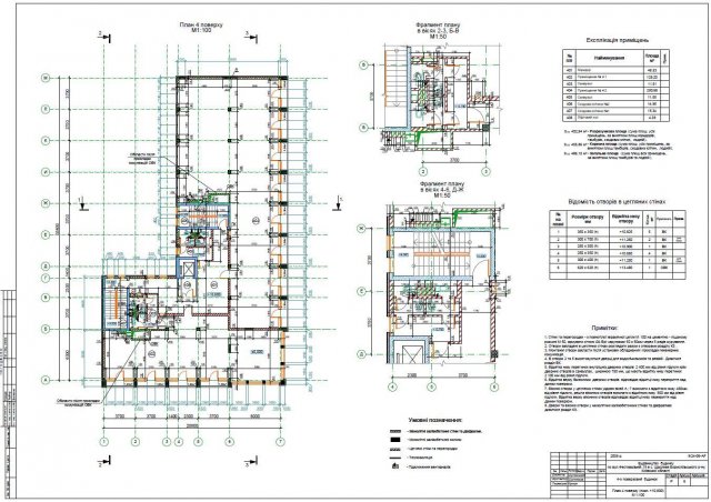
Проект строительства офисного центра в с. Счастливое.
На данном объекте специалистами нашей компании были выполнены проектные работы на следующих стадиях:
- Стадия “П” (проект);
- Стадия “Р” (рабочая документация);
в состав вышеуказанных стадий входили следующие разделы:
- Раздел “АР”;
- Раздел “КЖ”;
- Раздел “ВК”;
- Раздел “ОВ”;
- Раздел “ЭС”;











