Будівництво
Проектування
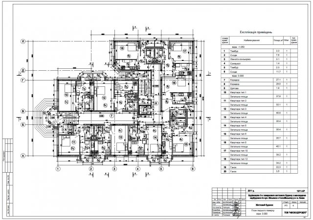
Разработка проекта по строительству жилого дома расположенного по адресу ул. Вильямса, 35, г. Киев
На данном объекте специалистами нашей компании были выполнены проектные работы на следующих стадиях:
- Стадия “РП” (рабочий проект);
в состав вышеуказанных стадий входили следующие разделы:
- Раздел “АР”;
- Раздел “КЖ”;
- Раздел “КД”;
- Раздел “ВК”;
- Раздел “ОВ”;
- Раздел “ЭС”;









