Будівництво
Проектування
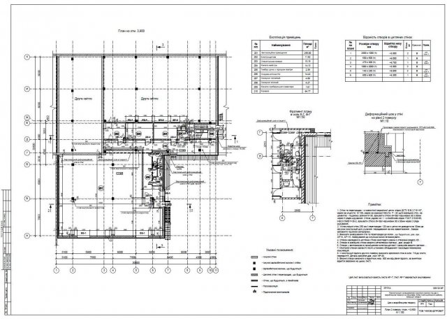
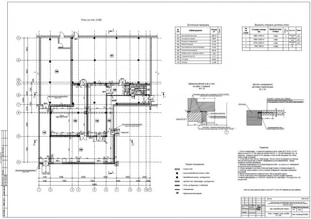
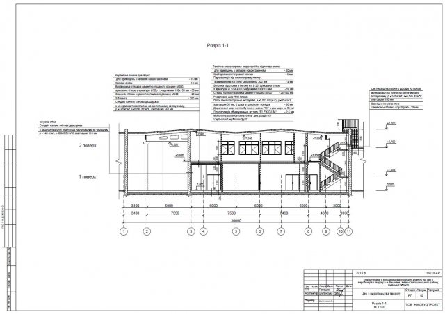
Разработка рабочего проекта по реконструкции цеха по производству творога ТМ “Словяночка”, ПАО “Вимм-Билль-Данн Украина” (PepsiCo Украина) в г.Вишневое.
- Стадия “П” (проект);
- Стадия “Р” (рабочая документация);
в состав вышеуказанных стадий входили следующие разделы:
- Раздел “АР”;
- Раздел “КЖ”;
- Раздел “КМ”;
- Раздел “ВК”;
- Раздел “ОВ”;
- Раздел “ЭС”;





