Будівництво
Проектування
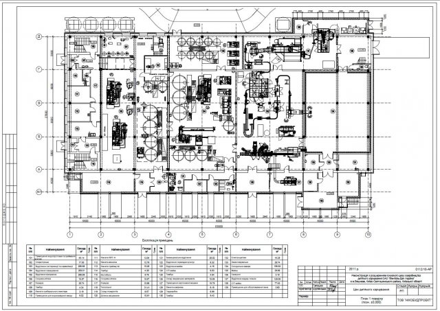
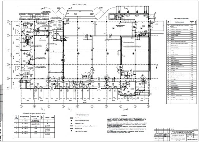
Разработка проекта по реконструкции цеха по производству продуктов детского питания ТМ “Агуша”, ПАО “Вимм-Билль-Данн Украина” (PepsiCo Украина), в г.Вишневое.
На данном объекте специалистами нашей компании были выполнены проектные работы на следующих стадиях:
- Стадия “П” (проект);
- Стадия “Р” (рабочая документация);
в состав вышеуказанных стадий входили следующие разделы:
- Раздел “АР”;
- Раздел “КЖ”;
- Раздел “КМ”;
- Раздел “ВК”;
- Раздел “ОВ”;
- Раздел “ПЗ”;
- Раздел “ТХ”;
- Раздел “ЭС”;
- Раздел “ПС”;





